Дом, Пролетарская, 104 Показать на карте
Воскресенск
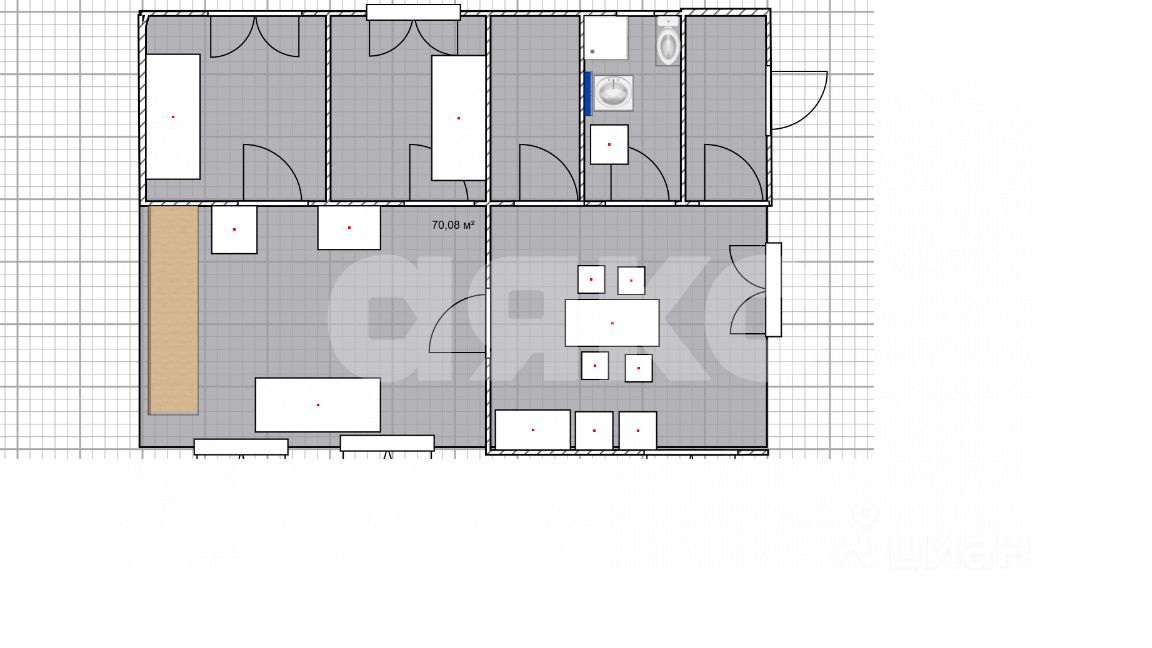
ПОДХОДИТ ДЛЯ ПРИОБРЕТЕНИЯ В СЕМЕЙНУЮ ИПОТЕКУ!Жилой ГАЗИФИЦИРОВАННЫЙ дом в черте города с участком — готовый вариант для комфортного проживания большой семьи. Дом построен на надежном ленточном фундаменте, стены из пеноблока обеспечивают хорошую теплоизоляцию, наружная отделка выполнена штукатуркой ''Короед'', что придает фасаду аккуратный и современный вид. Внутренние помещения подготовлены под финишную отделку: стены оштукатурены в два слоя, полы залиты полусухой стяжкой, что позволяет быстро завершить ремонт по своему вкусу. В котельной уже уложена плитка и установлено оборудование, что избавляет от необходимости дополнительных работ. Планировка продумана для удобства: три изолированные спальни обеспечивают приватность, просторная кухня-гостиная объединяет семейные зоны, санузел выполнен с учетом комфорта, а отдельная бойлерная упрощает обслуживание инженерных систем. Отопление организовано эффективно: на первом этаже — теплые полы, на втором — радиаторы. Все коммуникации заведены в дом и разведены, что гарантирует беспроблемную эксплуатацию. Участок ровный, правильной формы, полностью огорожен забором из профлиста, установлены откатные ворота — готовое решение для безопасности и комфорта. Расположение в городской черте обеспечивает доступность всей необходимой инфраструктуры: школы, детские сады, магазины и остановки общественного транспорта находятся в шаговой доступности. Дом подходит для всех видов расчетов, включая семейную ипотеку и сертификаты, что делает его привлекательным вариантом для покупки. Это практичное и надежное жилье без скрытых недостатков, готово Код пользователя: 41684Номер в базе: 9248440
125 м2
2 этажа
- Показать контакты
- Добавить в избранное
125 м2
2 этажа
9 500 000
76 000 /м2
