Если цена в объявлении изменится, мы сразу сообщим вам об этом на электронную почту.
Нажимая «Подписаться», вы соглашаетесь с правилами.
продам 2-к, Комсомольская, 1а2 600 000 ₽
13 фев
Дата публикации объявления
Обн. 19 мая
Дата обновления объявления
3
Количество просмотров (+ просмотры за сегодня)
59 091 ₽/м²
Чистая продажа
Термин "Чистая продажа" означает, что в квартире никто не прописан или
есть куда выписаться и вывезти вещи. Это лучший вариант для покупателя.
Вероятность срыва сделки минимальна.
Продаю квартиру в родном, обжитом районе — мкр. Лопатинский. Дом хрущевка, 5 этаж. Почему это хороший вариант:
Цена. Это реально дешево. Деньги не заморожены в ремонте — берите голые стены. Для первого жилья, сдачи или ''пересидеть'' — идеально.
5 этаж. В хрущевке минус (нет лифта) становится плюсом: над головой никого нет, никто не зальет, соседи сверху не бегают. И проветривается шикарно.
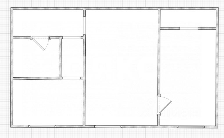
Планировка. Старая добрая классика: изолированная спальня + проходная комната . Кухня маленькая, но убирается всё необходимое. Состояние: Квартира ''убитая''? Нет. Но старая. Обои устали, полы скрипят. Главное — всё свое. Делайте косметику хоть за 50 тысяч, хоть капиталку. Санузел раздельный, балкон есть, окна во двор.
Продаю квартиру в родном, обжитом районе — мкр. Лопатинский. Дом хрущевка, 5 этаж. Почему это хороший вариант:
Цена. Это реально дешево. Деньги не заморожены в ремонте — берите голые стены. Для первого жилья, сдачи или ''пересидеть'' — идеально.
5 этаж. В хрущевке минус (нет лифта) становится плюсом: над головой никого нет, никто не зальет, соседи сверху не бегают. И проветривается шикарно.
Планировка. Старая добрая классика: изолированная спальня + проходная комната . Кухня маленькая, но убирается всё необходимое. Состояние: Квартира ''убитая''? Нет. Но старая. Обои устали, полы скрипят. Главное — всё свое. Делайте косметику хоть за 50 тысяч, хоть капиталку. Санузел раздельный, балкон есть, окна во двор.
Для кого: — Молодая семья, берет первое жилье. — Иногородним, кто работает в Москве/Коломне/Раменском (транспортная доступность хорошая). — Инвесторам под сдачу: стены есть, спрос на дешевое жилье в Лопатинском стабильный.
Территория: Лопатинский — самодостаточный микрорайон. Своя поликлиника, рынок, школа, техникум. До ж/д станции ходят маршрутки/автобусы.