Если цена в объявлении изменится, мы сразу сообщим вам об этом на электронную почту.
Нажимая «Подписаться», вы соглашаетесь с правилами.
продам 2-к, Центральная, 43 450 000 ₽
12 сен
Дата публикации объявления
Обн. 25 янв
Дата обновления объявления
77 354 ₽/м²
Чистая продажа
Термин "Чистая продажа" означает, что в квартире никто не прописан или
есть куда выписаться и вывезти вещи. Это лучший вариант для покупателя.
Вероятность срыва сделки минимальна.
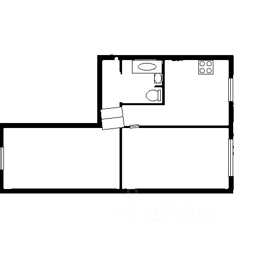
Двухкомнатная квартира площадью 44,6 кв.м. Находится в отличном состоянии после капитального ремонта с использованием качественных материалов: выполнена чистовая отделка, установлены стеклопакеты, новые межкомнатные двери и современная сантехника. Планировка : две комнаты площадью 18 и 14 кв.м, просторная кухня 6 кв.м, совмещенный санузел с современной отделкой. В квартире отсутствуют перепланировки, что обеспечивает юридическую чистоту и простоту сделки. Жилье полностью готово к заселению, что позволяет сэкономить время и ресурсы на ремонте. Расположение объекта является его ключевым преимуществом: в пешей доступности находятся остановка общественного транспорта, супермаркет ''Пятерочка'', пункты выдачи заказов OZON и Wildberries, а также детский сад, школа и поликлиника.
Двухкомнатная квартира площадью 44,6 кв.м. Находится в отличном состоянии после капитального ремонта с использованием качественных материалов: выполнена чистовая отделка, установлены стеклопакеты, новые межкомнатные двери и современная сантехника. Планировка : две комнаты площадью 18 и 14 кв.м, просторная кухня 6 кв.м, совмещенный санузел с современной отделкой. В квартире отсутствуют перепланировки, что обеспечивает юридическую чистоту и простоту сделки. Жилье полностью готово к заселению, что позволяет сэкономить время и ресурсы на ремонте. Расположение объекта является его ключевым преимуществом: в пешей доступности находятся остановка общественного транспорта, супермаркет ''Пятерочка'', пункты выдачи заказов OZON и Wildberries, а также детский сад, школа и поликлиника. Развитая инфраструктура района включает ветеринарную клинику, дом культуры и спортивный комплекс. Для автомобилистов удобный выезд на трассу, что особенно ценно для ежедневных поездок. Пешее расстояние до платформы Трофимово составляет 25 минут, на общественном транспорте до центра города можно добраться за 7-10 минут. Близость лесного массива создает возможности для активного отдыха и прогулок на свежем воздухе. Объект представляет собой практичное решение для постоянного проживания благодаря удачному сочетанию транспортной доступности, развитой социальной инфраструктуры и качественного ремонта. Квартира подходит как для молодых семей, так и для инвестиционных целей.