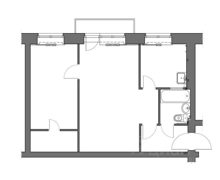
Продается уютная двухкомнатная квартира в г. Воскресенск на улице Калинина, д. 50/2. Удобное расположение - до ж/д платформы Москворецкая всего 8 минут неторопливым шагом. Комнаты смежные 16 и 10 кв.м., кухня 6 кв.м., санузел совмещенный. Окна во двор, просторная застеклённая лоджия. Чистый подъезд, добродушные соседи. Рядом с домом продуктовые магазины (Магнит), городская поликлиника 4, физкультурно-оздоровительный комплекс Триумф. Во дворе детская площадка. Без обременений и маткапитала, ипотека подходит. ДКП 2005 года, никто не зарегистрирован, свободная продажа.