Если цена в объявлении изменится, мы сразу сообщим вам об этом на электронную почту.
Нажимая «Подписаться», вы соглашаетесь с правилами.
продам дом, Арт Хаус кп19 040 000 ₽
6 июня 2025
Дата публикации объявления
Обн. 16 апр
Дата обновления объявления
6
Количество просмотров (+ просмотры за сегодня)
Топ
Спецпредложение
Выделение цветом
Турбо x2
Турбо x4
Турбо x8
126 009 ₽/м²
Чистая продажа
Термин "Чистая продажа" означает, что в квартире никто не прописан или
есть куда выписаться и вывезти вещи. Это лучший вариант для покупателя.
Вероятность срыва сделки минимальна.
Этажей2
Площадь участка13,75 соток
Общая площадь151,1 м2
ЭлектричествоЕсть
Лот: 159706
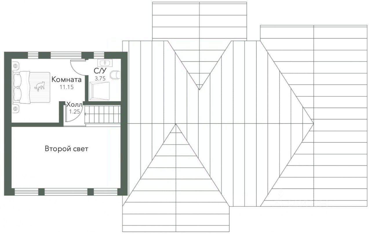
Продается двухэтажный коттедж в КП ''Art House'' общей площадью 151.1 м2 с предчистовой отделкой (разведены внутренние инженерные коммуникации), на участке 13.75 соток. Проект Fusion - двухэтажный дом с панорамными окнами (с двухкамерным стеклопакетом и пятикамерным профилем). Функциональной планировкой предусмотрены: кухня-гостиная со вторым светом и большой террасой, три спальни, три санузла, гардеробная комната, котельная, холл, тамбур.
Дом продается с предчистовой отделкой: проведена электрика, установлен электрощиток с автоматами защиты, проведены трубы горячего и холодного водоснабжения и отведения, теплые водяные полы по всему периметру дома.
Лот: 159706
Продается двухэтажный коттедж в КП ''Art House'' общей площадью 151.1 м2 с предчистовой отделкой (разведены внутренние инженерные коммуникации), на участке 13.75 соток. Проект Fusion - двухэтажный дом с панорамными окнами (с двухкамерным стеклопакетом и пятикамерным профилем). Функциональной планировкой предусмотрены: кухня-гостиная со вторым светом и большой террасой, три спальни, три санузла, гардеробная комната, котельная, холл, тамбур.
Дом продается с предчистовой отделкой: проведена электрика, установлен электрощиток с автоматами защиты, проведены трубы горячего и холодного водоснабжения и отведения, теплые водяные полы по всему периметру дома.
Дом возведен из газоблоков с внешней отделкой имитацией бруса, по улучшенному индивидуальному проекту с использованием качественных стройматериалов, обеспечивающих высокие показатели ветрозащиты, гидроизоляции и сохранения оптимального микроклимата. Произведено дополнительное утепление металлической клик-фальцевой кровли. Земельный участок огорожен, имеет откатные ворота и калитку. К дому организован асфальтированный подъезд шириной 5м. Центральные коммуникации: электроснабжение 15кВт, водоснабжение, высокоскоростной Интернет с подключением по оптоволоконному кабелю.
КП Арт Хаус (Art House) находится в 45 минутах от МКАД по Новорижскому шоссе, в окружении густого натурального леса и живописных озер поблизости. На территории поселка будут построены детские и спортивные площадки, а после заселения поселка планируется открытие банного комплекса, центр спорта и туризма. При строительстве детских игровых комплексов и спортивных площадок используются только натуральные материалы: древесина, металл, природный камень, мульча, различные канатные и веревочные изделия. Здесь будет универсальная спортивная площадка для игры в бадминтон, волейбол, баскетбол.