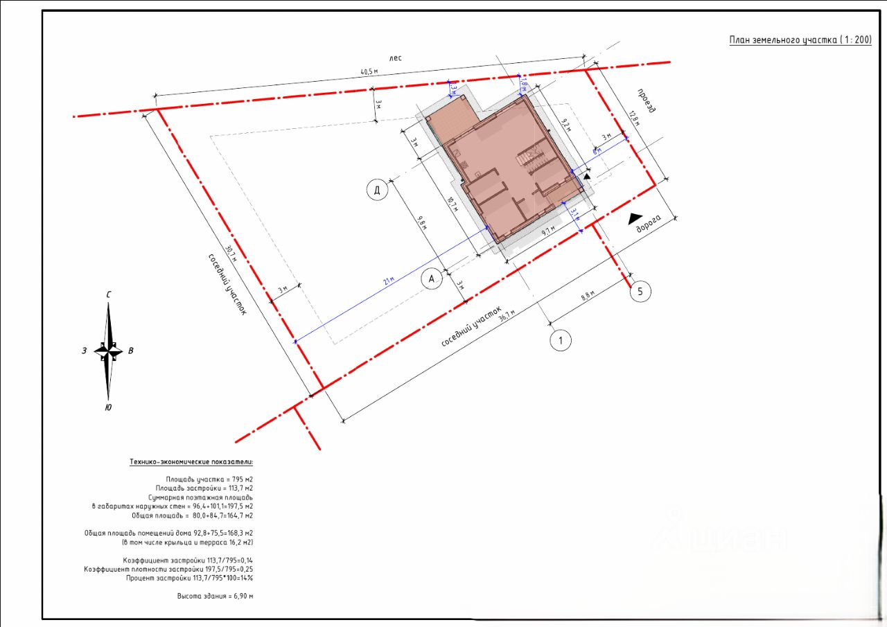
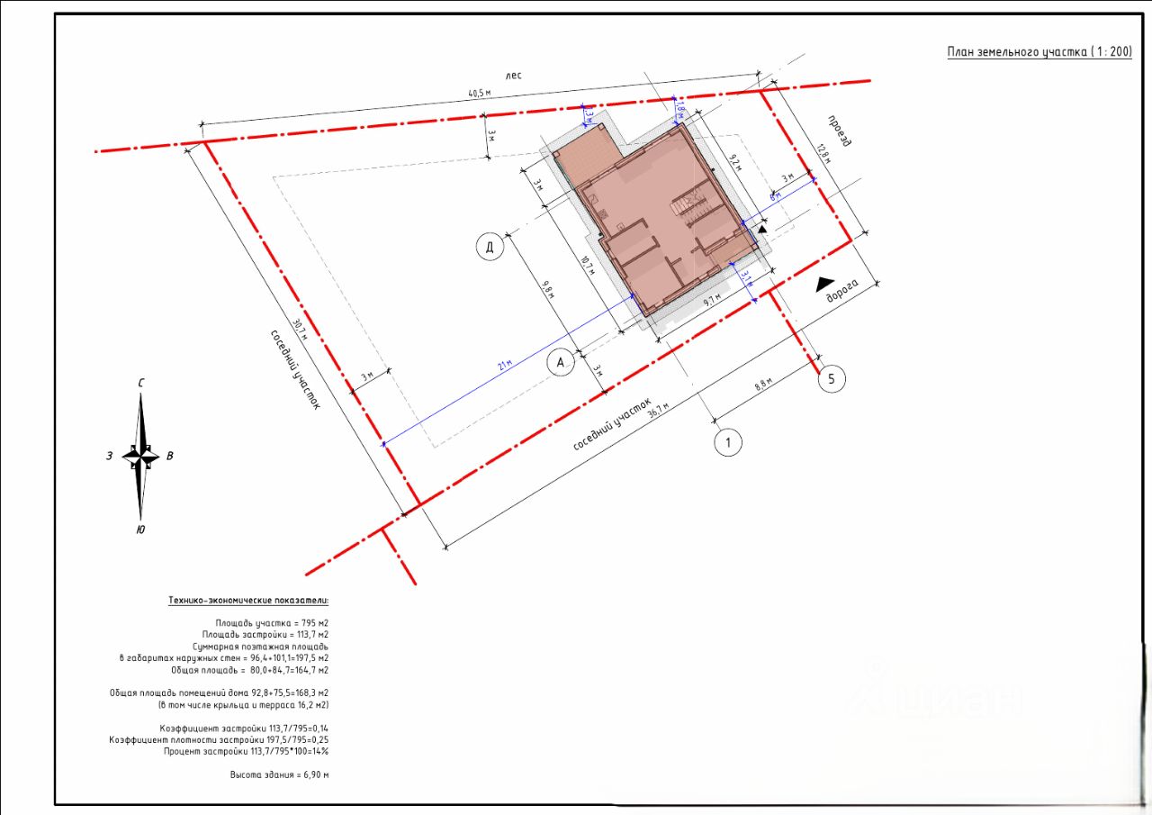
Участок 8 соток ровный, на участке фундамент (монолитная плита) 10,7х9,7 площадь застройки 113,7м, колодец, заведено электричество 20кв. Участок расположен возле леса и недалеко от озера. Коттеджный посёлок закрытый, охраняемый, находится в живописном месте, рядом красивый лес и озеро. Зимой дороги чистят. До села Барановское пешком минут 10-15, там магазины, школа, поликлиника, садик, церковь. До ж.д станции Конобеево на автобусе 10-15 минут езды.
Эксперты информационного центра недвижимости ''Ваш Дом'' ежедневно готовы ответить на Ваш звонок и провести для Вас показ дома, не смотря на выходные, праздничные дни и ненастную погоду. Также мы сотрудничаем с крупными банками и оказываем клиентам помощь в оформлении ипотеки. Звоните, с удовольствием организуем показ.









