Если цена в объявлении изменится, мы сразу сообщим вам об этом на электронную почту.
Нажимая «Подписаться», вы соглашаетесь с правилами.
продам дом, Семиславка СНТ, 2623 200 000 ₽
12 мая 2024
Дата публикации объявления
Обн. 2 фев
Дата обновления объявления
1
Количество просмотров (+ просмотры за сегодня)
32 000 ₽/м²
Чистая продажа
Термин "Чистая продажа" означает, что в квартире никто не прописан или
есть куда выписаться и вывезти вещи. Это лучший вариант для покупателя.
Вероятность срыва сделки минимальна.
Этажей3
Площадь участка6 соток
Общая площадь100 м2
Материал домакирпич
ЭлектричествоЕсть
Газоснабжениенет
Дом с участком, дача, я собственник. Дом построен капитально, оформлен как жилой. Тихое и живописное место. Воскресенский район. Вокруг шикарный сосновый лес, ягоды, грибы, много озер.
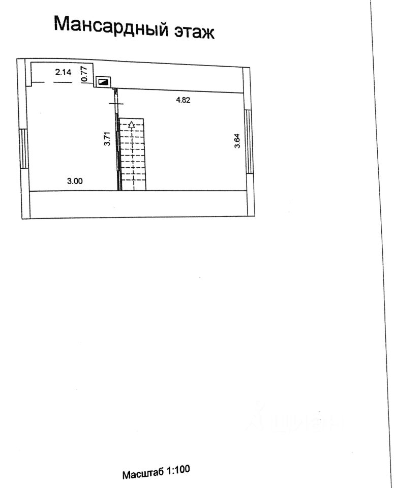
Дом около 70 кв м. (+ цокольный этаж более 30 кв. м). По документам оформлено меньше (за вычетом печки, лестницы и цокольного этажа).
Дом капитальный из долговечных бетонных блоков - бессер. При оформлении кадастровый инженер сказал дом вечный, сейчас чаще всего используют дешевые блоки для строительства. 1 и 2 этаж полностью утеплен, отделка - имитация бруса, покрытие Сенеж (белый иней). Пластиковые окна. Первый этаж - свободная планировка, пол утеплен пеноплексом + половая доска. Есть печь и камин (с одной стороны камин, с другой печь для отопления и приготовления еды).
Дом с участком, дача, я собственник. Дом построен капитально, оформлен как жилой. Тихое и живописное место. Воскресенский район. Вокруг шикарный сосновый лес, ягоды, грибы, много озер.
Дом около 70 кв м. (+ цокольный этаж более 30 кв. м). По документам оформлено меньше (за вычетом печки, лестницы и цокольного этажа).
Дом капитальный из долговечных бетонных блоков - бессер. При оформлении кадастровый инженер сказал дом вечный, сейчас чаще всего используют дешевые блоки для строительства. 1 и 2 этаж полностью утеплен, отделка - имитация бруса, покрытие Сенеж (белый иней). Пластиковые окна. Первый этаж - свободная планировка, пол утеплен пеноплексом + половая доска. Есть печь и камин (с одной стороны камин, с другой печь для отопления и приготовления еды). На втором этаже 2 комнаты, на полу ламинат. Комната на 2-м этаже тоже отапливается от печи. Цокольный этаж - помещение свободного назначения (планировалось сделать жилым), есть яма под погреб.
Частично сделан красивый качественный ремонт с утеплением, с использованием дорогих материалов, удобная пологая лестница, красивая печь с камином по индивидуальному проекту. В угловых нишах на втором этаже сделаны встроенные шкафы, что позволяет минимизировать мебель. Материал дома: бессер + кирпич, перед домом забор из металлического двухстороннего штакетника под дерево. Можно подключить безлимитный стабильный высокоскоростной интернет - оптоволокно. СНТ находится на бугре, соседний снт ниже на высоту дома, даже больше.
Электричество заведено в дом. Вода на границе участка (у соседей скважина на 4 дома, можно согласовать с соседями и присоединиться). . На участке яблони, груши, смородина, вишня.
Вокруг шикарный сосновый лес, ягоды, грибы, много озер. До леса 50-100 метров, до ближайшего озера 200 метров, оно в лесу и в нем купаются и ловят рыбу. Второе озеро с другой стороны СНТ. Есть большое озеро (в длину около 2,5 км) по дороге на дачу. Летом много ягод и грибов.
Круглогодичный подъезд, дороги чистят, на территории СНТ есть магазин, летом работает каждый день. В некоторых домах проживают круглый год, в том числе председатель.
На даче не жили, приезжали иногда на выходные. Ремонт сделан частично. Для круглогодичного проживания требуется доделать ремонт (санузел, цокольный этаж при необходимости).
Я собственник, не риэлтор. Дом и земля в собственности.
Если не дозвонились, напишите, пожалуйста, сообщение и я обязательно отвечу/перезвоню. Спасибо.