Часть дома, Инициативная, 19 Показать на карте
Воскресенск
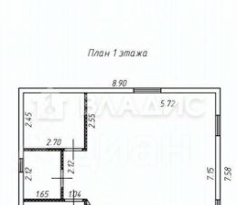
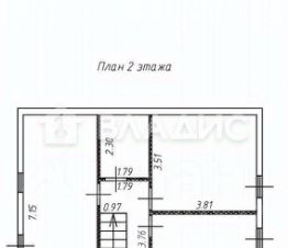
Арт. 72528512 Уникальное предложение от Компании Самолет Плюс-субсидированная ставка 0,4% на первые 1-2 года, также можем предложить от 14,75% на весь срок!Не упустите свой шанс, приобрести КРУГЛОГОДИЧНЫЙ ДОМ с УЧАСТКОМ ИЖС!!! АНАЛОГОВ В ДАННОЙ ЛОКАЦИИ НЕТ!!!Внимание!!! продаётся половина дома. Уютный, круглогодичный, капитальный дом в черте города.О доме:- Дом очень крепкий и тёплый, на капитальном ленточном фундаменте!!! - Оштукатурен (внешняя отделка), - Общая площадь 50. кв.м.- Окна деревянные.- Отопление ГАЗ.-Электричество.-Центральное водоснабжение.О ДОМЕ:- Прихожая,- Кухня гостиная,- Сан.узел совмещённый,- B доме 2 кoмнатыУчасток и коммуникации:- Участок 3 сотки, ровный правильной формы ,- Огорожен забором (со всех сторон),- Водоснабжение центральное,- Электричество 15 кВт,- Площадка под авто,- Удобные подъездные пути, до дома,- Если хочется уединения, но в тоже время иметь связь с развитой инфраструктурой это именно то, что вам нужно!Инфраструктура:- Рядом в пешей доступности находятся: (10 минут пешком)ж/д станция Цемгигант, (Казанское направление до Москвы )до Выхино 1 ч.10 мин. 1 час 30 мин до Москвы,- До центра г. Воскресенск 15 мин на машине, или общественным транспортом,- В пешей доступности находится сетевые магазины, школа, детский сад, центральная поликлиника,- Рядом находится лесополоса (грибы, ягоды, пешие прогулки), озеро с пляжем для купания.Виды расчетов:- Ипотека,- Наличные,- Материнский капитал.Гарантия юридической чистоты сделки от компании!Звоните! Записывайтесь на показ объекта прямо сейчас!Рады будем ответить на все ваши вопросы
50 м2
- Показать контакты
- Добавить в избранное
50 м2
3 450 000
69 000 /м2
