Дом, Фетровая 1-я Показать на карте
Воскресенск
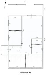
В стоимость входят : Шикарный ДОМ Двухэтажный дом 83м2 , 6 соток, город Воскресенск , Фетровой фабрики у школы 9. до ЖД 15 мин пешком. Стоимость указана за наличные. Если ИПОТЕКА + 100тр. Консультирую по телефону- Бесплатно. В отличие от конкурентов - мы не навязываем Вам ненужные услуги и не пользуюсь вашей неосведомлённостью! Мы работаем на репутацию! Конструктив Дома: - 1-й этаж: 1 комната - 13.5м2, кухня-гостиная 17,3м2 , санузел под ключ (унитаз, раковина, ванна +выводы под стиральную машину. - 2-й этаж: 2 комнаты- 11.5/10,5м2. Холл 5м2. Коммуникации под ключ, заведены в дом, разведены по местам потребления ! Современный дом,полностью готовый для круглогодичного проживания. ОПЛАТА: Ипотека ЛЬГОТНАЯ : СЕМЕЙНАЯ 6%- первоначальный взнос от 20.1%, ИТ 6% Так же - ХЕРСОНСКИЙ сертификат, Военная ипотека и сертификат, ОПЕКА, Материнский капитал, за НАЛИЧНЫЙ расчет скидка! О ДОМЕ: - Фундамент ленточный армированный ростверк. - Материал строительства- Каркасный. Облицован- доска имитация бруса. - Перекрытие- каркасное. - Отопление гибридный котел Теплодар с возможностью отапливать дом электричеством и твердым топливом (дрова, уголь, брикеты и прочее). - Электричество 15 кВт, 3 фазы. - Водоснабжение -Скважина с насосной станцией. - Канализация - септик переливной 2 колодца по 2 кольца каждый, чистка 1,5 раз в год, объём 2,5 м3 . (возможно увеличить). - Кровля- металлочерепица. - Окна пластиковые с двухкамерными стеклопакеты. - Стены первый этаж каркас 200 мм х 40мм, второй этаж каркас с утеплением 200мм изовер, перекрытия деревянные, мансарда утепления 200мм каменная вата. Очень теплый дом. В пешей доступности : школа,детский сад, школа рядом, поликлиника , магазины, строительный рынок. На личном автомобиле можно добраться до МКАД за 35 мин. Компания Твой дом строим и продаем Каркасные дома от 80 до 157 м2. Покраска входит в стоимость.
93 м2
2 этажа
- Показать контакты
- Добавить в избранное
93 м2
2 этажа
5 800 000
62 366 /м2
